sanierte 2-Raum-Wohnung im Dachgeschoss in Kamsdorf
Am Weidig 2 | 07333 Unterwellenborn
Kosten
Kaltmiete:
255,78 €
Nebenkosten:
164,22 €
Kaution:
357,90 €
Gesamtmiete:
420,00 €
Heizkosten sind in der Gesamtmiete enthalten.
Allgemeine Infos
Wohnungs-Nr.:
340/17/51
Etage:
DG
Anzahl Etagen:
2
Anzahl Zimmer:
2
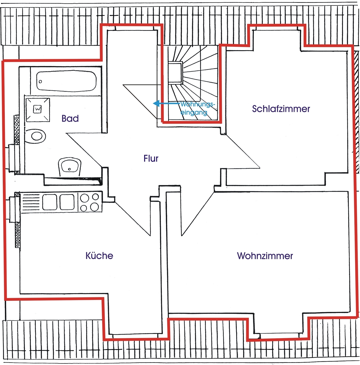
Wohnfläche:
44,10 m²
Verfügbar ab:
nach Absprache
Objektinformationen
Balkon:
Aufzug:
Dusche:
Wanne:
Bad mit Fenster:
Betreutes Wohnen:
Energieausweisdaten
Energieausweisart:
Verbrauchsausweis
Energiekennwert
144,00 kWh/(m²*a)
Energieklasse:
E
Energieträger:
Gas
Heizungsart:
Zentralheizung
Gebäudebaujahr:
1938
Objektbeschreibung
Sanierte 2-Raum-Wohnung, Bad mit Wanne; Rauhfaser weiß, Bodenbelag (Laminat, Vinyl oder CV-Belag), Telefon- und Kabelanschluss (DSL, Telefon und Digital-TV über Kabelnetz möglich
Kleines Mehrfamilienhaus mit zwei Hauseingängen (pro Hauseingang 3 Mietparteien), sanierter Altbau mit ausgebautem Dachgeschoss aus den dreißiger Jahren, 2 Etagen, Keller vorhanden
Kleines Mehrfamilienhaus mit zwei Hauseingängen (pro Hauseingang 3 Mietparteien), sanierter Altbau mit ausgebautem Dachgeschoss aus den dreißiger Jahren, 2 Etagen, Keller vorhanden
Lagebeschreibung
zentrale Lage von Kleinkamsdorf, Schule, Einkaufsmöglichkeiten und öffentl. Nahverkehr in unmittelbarer Nähe
Sonstiges
Genossenschaftsanteile: 357,90 EUR bei Einzug + weitere Anteile (in Ratenzahlungen möglich)
PkW Stellplatz im öffentlichen Straßenbereich
Infos zum Kabelanschluss unter www.pyur.com
noch mehr Wohnungsangebote finden Sie unter www.wg-maxhuette.de
PkW Stellplatz im öffentlichen Straßenbereich
Infos zum Kabelanschluss unter www.pyur.com
noch mehr Wohnungsangebote finden Sie unter www.wg-maxhuette.de
Mit dem Laden der Google Karte akzeptieren Sie die Datenschutzerklärung von Google.
Mehr erfahren
Ihr Ansprechpartner
Frau Claudia Lange
Telefon
03671 - 57 29 25
03671 - 57 29 25
E-Mail
c.lange@wg-maxhuette.de
c.lange@wg-maxhuette.de
Sie haben Interesse an dieser Wohnung?


